
- Mẫu: VK-SPAF
- Cách đo: Đo bằng vít tải và cấp liệu
- Phạm vi trọng lượng: 50-500g
- Độ chính xác: 2%
- Tốc độ: 10-30 chai/phút
- Điện áp: 220V (có thể tùy chỉnh)
- Phễu: 25L
- Vòi phun: 10mm (một vòi khác cho 15mm, 18mm, 20mm, 25mm)
- Công suất: 1.2KW
- Trọng lượng GN: 230/200kgs
- Kích thước: 800×850×2000mm
Máy chiết bột này được làm hoàn toàn bằng thép không gỉ, hệ thống chiết được điều khiển bằng động cơ servo, và bộ giảm tốc không cần bảo dưỡng do Đài Loan sản xuất được sử dụng để khuấy động động cơ, tủ sản phẩm được chỉ định là hoàn toàn đóng, điều khiển áp suất không khí bằng van điều tiết, được làm bằng thép không gỉ và kính. Thiết bị hút bụi được lắp ở miệng ống chiết, được thiết kế để có thể tái sử dụng, có thể điều chỉnh độ cao của bàn làm việc, có ngăn kéo đựng sản phẩm thải dưới bàn.
Các tính năng chính của máy chiết bột talc trẻ em bán tự động


Được làm bằng thép không gỉ: hoàn toàn đáp ứng yêu cầu của GMP hoặc chứng nhận vệ sinh thực phẩm khác phù hợp để đóng gói hóa chất ăn mòn;
Độ ổn định tốt hơn và độ chính xác khi cân cao hơn;
Hệ thống chiết rót được điều khiển bằng động cơ bước, độ chính xác cao, mô-men xoắn cao, tuổi thọ hoạt động dài và có thể cài đặt vòng quay;
Bộ giảm tốc không cần bảo dưỡng do Đài Loan sản xuất được sử dụng cho động cơ khuấy: độ ồn thấp, tuổi thọ hoạt động cao, không cần bảo dưỡng trọn đời;
Được thiết kế để có thể thay đổi điều kiện làm việc bất cứ lúc nào;
Có thể lưu tối đa 10 công thức để sử dụng sau;
Vật liệu tiếp xúc là thép không gỉ loại 304 dùng trong thực phẩm;
Tủ sản phẩm được đóng hoàn toàn, kiểm soát áp suất không khí ẩm và được làm bằng kính kết hợp với thép không gỉ, chuyển động của sản phẩm trong tủ có thể nhìn rõ trong nháy mắt, không bị rò rỉ bột, thiết bị hút bụi gắn ở miệng ống chiết giúp môi trường nhà máy sạch sẽ;
Nhờ có thể thay đổi phụ kiện, máy có thể phù hợp với nhiều sản phẩm, bất kể là sản phẩm có công suất siêu mịn hay hạt lớn.
Thông số kỹ thuật của máy đóng bột định lượng trục vít
| Người mẫu | VK-SPAF |
| Cách đo lường | Đo và cấp liệu bằng vít tải |
| Phạm vi trọng lượng | 50-500g |
| Sự chính xác | 2% |
| Tốc độ | 10-30 chai/phút |
| Điện áp | 220V (có thể tùy chỉnh) |
| phễu | 25L |
| Vòi phun đầy | 10mm (một cái khác cho 15mm、18mm、20mm、25mm) |
| Quyền lực | 1,2KW |
| Trọng lượng GN | 230/200kg |
| Kích cỡ | 800×850×2000mm |
Minh họa về máy chiết bột


Chi tiết


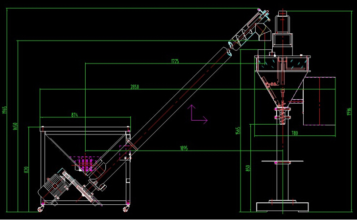
Vật liệu nạp vít thang máy Tải & nạp

Lắp đặt cho việc nạp và nạp vật liệu
Công tắc hai chiều; quay tiến/lùi tương ứng để nạp vật liệu và dỡ vật liệu từ cửa ra phía dưới.
Khớp nối trục của bộ giảm tốc không thể bị chặn. Sau khi lắp đặt, khớp nối trục phải có độ bền kéo và độ linh hoạt để tránh hư hỏng do cháy do quá tải trong động cơ. Trong quá trình lắp đặt, bu lông mặt bích có thể được điều chỉnh đúng cách.
Đầu chốt trục vít không bao giờ được cố định quá chặt vì nếu không trục vít quay sẽ chạm vào thành ống do trục vít cong. Vui lòng vặn chặt đai ốc để cố định chốt để cố định. Mỗi lần kéo trục vít ra để vệ sinh và lắp lại nên cân nhắc đến điểm này.
Thể tích và chiều cao của thang máy có thể được tích hợp với máy đóng gói bằng phương pháp cảm ứng nối tiếp. Không có vật liệu nạp từ thang máy nếu không có vật liệu trong bồn.
Hệ thống nâng hoạt động kết hợp với máy chiết bột, tự động nạp và dừng.
Thông số kỹ thuật cho thang máy

| Chuyển khối lượng | 1 triệu3/Giờ (tích hợp với máy chiết rót) |
| phễu | 100L |
| Nâng cao chiều cao | 2000mm |
| Công suất động cơ | 1,5KW |
| Cung cấp điện | 380V/50-60Hz |
| Chiều cao giữa phễu và mặt đất | 800-900mm |
| Thương hiệu động cơ | Tháng bảy |
| Vật liệu phễu | SS304, Độ dày 1.50mm |
| Ống dẫn vật liệu chuyển | SS304, Đường kính: 103mm, Độ dày: 3.00mm |
| Máy khoan | SS304, độ dày 3.00mm |
| Trục | SS304, Đường kính 35mm |
| Cân nặng | 150KG |
| Kích cỡ | 1900*880*2100mm (có thể tùy chỉnh) |
Bảo đảm: Đối với tất cả các máy, công ty cam kết bảo hành 1 năm. (Không bảo hành các vấn đề do tai nạn, sử dụng sai, sử dụng sai, hư hỏng do lưu trữ, bất cẩn hoặc sửa đổi thiết bị hoặc các thành phần của thiết bị. Ngoài ra, các bộ phận dễ hỏng không được bảo hành)
Cài đặt: Sau khi máy đến nhà máy của bạn, nếu bạn cần, kỹ thuật viên của chúng tôi sẽ đến nơi của bạn để lắp đặt và kiểm tra máy và cũng đào tạo công nhân của bạn vận hành máy (thời gian đào tạo phụ thuộc vào công nhân của bạn). Chi phí (vé máy bay, thức ăn, khách sạn, phí đi lại ở quốc gia của bạn) sẽ do bạn chi trả và bạn cần trả cho kỹ thuật viên 150 đô la Mỹ một ngày. Bạn cũng có thể đến nhà máy của chúng tôi để đào tạo.
Dịch vụ sau: Nếu máy của bạn gặp sự cố, kỹ thuật viên của chúng tôi sẽ đến tận nơi để sửa máy cho bạn sớm nhất có thể. Chi phí sẽ được tính vào tài khoản của bạn (như trên).









